A Daily dose of Dolmen #42

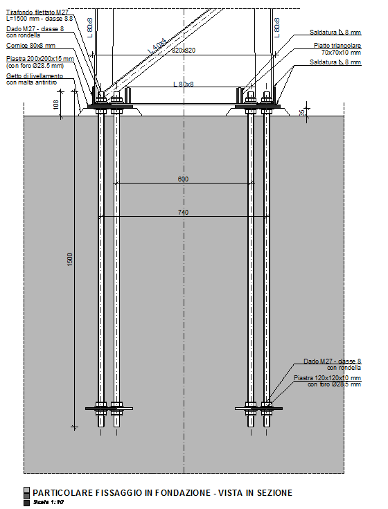
Progettazione di un traliccio per telecomunicazioni

Progettazione di un traliccio per telecomunicazioni per un provider internet locale.

Posizionato sulla cima di una montagna a circa 1100 m sul livello del mare, interamente in acciaio da 15.00 m di altezza per il fissaggio di antenne paraboliche nella parte sommitale da 5.00 m.

Blocco di fondazione in calcestruzzo da 15 m³ di calcestruzzo circa. Azioni del vento determinate secondo NTC2008 e CNR DT207/2008. Azioni da ghiaccio secondo ISO 12494.

Progettazione di un traliccio per telecomunicazioni